營銷總監:靳經理 18653877118
銷售部:張經理 18653877126
郵箱: admin@cnshelley.com
shelley@cnshelley.com
銷售總部: 山東泰安長城路96號天龍國際大廈B座1405室。
工廠地址:山東省泰安市岱岳區北集坡街道海納街789號
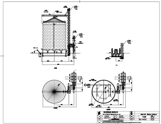
新疆型煤廠6000m³玉米鋼板倉淀粉粘合劑項目
潔凈型煤就是將農作物秸稈、粉煤、煤矸石等可燃物質混合后,加入節能減排增效劑,用水泥廠原有的設備,只改變水泥生產配方,實現清潔生產的粘結劑產品,經擠壓成型生產出來的既防水又能長期存放的潔凈型煤也叫混凝煤。這種型煤不需要烘干可以自然固化,包裝后儲運不破碎、無污染、燃燒中無煙、無味、無塵。使不同的爐具均能實現清潔排放。
而潔凈型煤生產過程中所使用的的粘結劑,就是使用玉米糊化淀粉制作,為了降低生產成本,客戶選擇自己制作淀粉粘結劑。玉米淀粉的加工,必然使用玉米作為生產原料,為有效保證生產供給,同時降低玉米的原料采購成本,我公司和客戶工藝對接之后,根據客戶的型煤產量和粘結劑月度使用量,進而設計出完全符合客戶倉容的玉米鋼板倉,即本次的6000m³玉米筒倉。

6000m³裝配式鍍鋅鋼板倉,型號是TCK18319水泥平底倉,直徑18.3m,高度28.5m,倉容6000m³,采用多點卸料方式,承重式卸車系統,每小時卸車產量60噸,配備清理篩、整套除塵系統、通風系統、測溫系統、進倉輸送與出倉輸送相結合,全部采用電控式操作,方便快捷,節約人工的同時,待機效率提高25%。

公司在簽訂鋼板倉合同之后,積極履約,快速排產,在縮短工期的同時,保質保量,對生產的每個細節做到換換把控,監測到位,為客戶提供高品質的產品設備,是我們雪萊人不懈的追求。也為客戶的潔凈型煤事業盡一份自己的力量,對我國節能減排,做出了自己的貢獻。積跬步,程千里,匯溪流,成江海,只要每一個企業做好自己的本業工作,也一定會為中國的節能減排工作貢獻自己的力量,中國未來的天空會更藍。

推薦資訊更多>>