營銷總監:靳經理 18653877118
銷售部:張經理 18653877126
郵箱: admin@cnshelley.com
shelley@cnshelley.com
銷售總部: 山東泰安長城路96號天龍國際大廈B座1405室。
工廠地址:山東省泰安市岱岳區北集坡街道海納街789號
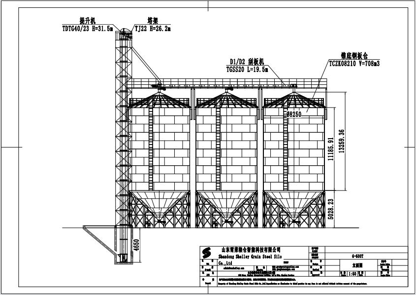
陜西寶雞6-500T鋼板倉項目案例
此項目為6臺500噸存儲玉米的全鋼錐底鋼板倉,三個倉一排,按照兩排分布,塔架設置在兩排中心位置,糧食經卸糧坑輸送到提升機中,再經提升機輸送到頂部配合電動三通,將糧食分別輸送到兩排鋼板倉中,倉內設有通風和測溫裝置,可以實時檢測倉內糧食溫度和濕度變化,達到安全儲糧的作用。當糧食出倉時,倉底刮板機,將糧食輸送到指定位置。

6套500T錐底鋼板倉參數
500噸錐底鋼板倉主要用于存儲玉米、小麥、稻谷等糧食及其他顆粒狀物料。具有機械化程度高、使用壽命長等優點。
容積:636m3 直徑: 8.2m 倉檐高:16.22m 總高:18.29m 錐頂角: 25。 倉頂蓋板為δ1.0mm熱鍍鋅板,選用國產優質熱鍍鋅板,倉頂上設置自然通風窗、人孔、爬梯,倉頂用航空膠泥和防水墊圈密封,沿倉檐四周設有安全防護欄。

倉筒:壁板材料選用大型鋼廠的優質熱浸鍍鋅卷板。雙面鍍鋅量為275g/㎡,終完成的鍍鋅層連續、光滑、均勻,波紋板采用沖孔形式。倉板接縫處采用航空防水膠泥條密封.立柱:主要作用是增加倉的抗震性、抗側向、豎向荷載的能力,增加倉的豎向穩定性;外立柱同倉壁均采用高強度特殊定制的達克羅鍍鋅螺栓連接。
全鋼錐底鋼板倉錐底全部由鋼結構件制造,此結構易于出料。

發貨及安裝服務
此項目在工廠車間加工完成后,通過物流發運到八角廟村項目現場,貨到現場后,公司派安裝人員到達項目現場卸車,并完成項目的安裝和調試。。在雙方的配合下,順利將此項目安裝完成,此項目得到了客戶的好評并給予公司以及現場工程師高度贊譽。

錐底鋼板倉的應用范圍
錐底鋼板倉單倉存儲容量大可到1600噸,可以應用于飼料廠、面粉加工廠,養殖場,酒廠,國家糧庫、糧貿公司,食品加工廠等。鋼板倉均有配套設備,可根據使用要求配置進倉、出倉、通風、烘干、測溫、測滿等設備,達到安全儲糧的目的。因鋼板倉具有占地面積小,機械化程度高,安裝發貨方便,便于實現自動化等優點,因此裝配式鋼板倉得到了廣泛的應用。
推薦資訊更多>>